Renovierte 3-Zimmerwohnung in gepflegter Wohnanlage in Sülldorf
| Baujahr: 2017 | Etage: EG |
| Wohnfläche: ca. 85m² | Zimmer: 3 |
| Heizung: Gaszentralheizung | Fahrstuhl: ja |
| TG-Stellplatz: 1 | Balkone/Terrassen: 1 |
| Abstellräume: Keller | Vollbad: ja, Tageslichtbad |
| Parkettboden: Buchenparkett | |
| Kaufpreis: 267.000,-€ | Courtage: 6,25% inkl. MwSt |
sonstiges:
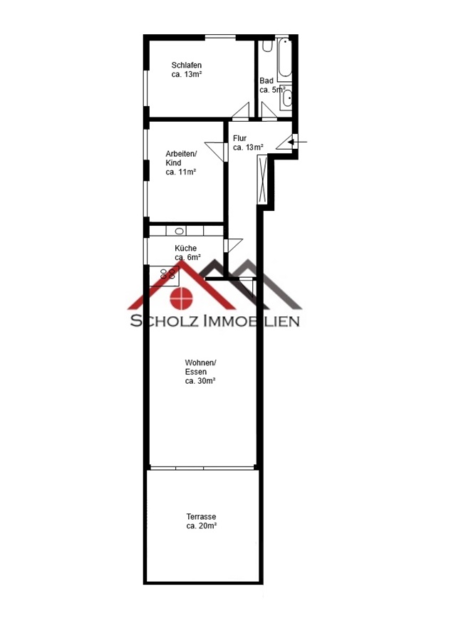
Die gut geschnittene 3-Zimmerwohnung, mit Terrasse und Garten, befindet sich im Hochparterre einer sehr gepflegten Wohnanlage, in der ein Generationswechsel stattfindet. Über das helle und Lichtdurchflutete Treppenhaus gelangt man in die Wohnung. Hier liegt in jedem Raum, bis auf das Badezimmer und der Küche (gefliest), Echtholzparkett. Vom großzügigen Flur aus gehen das Schlafzimmer, ein Kinder-/Arbeitszimmer, das hell geflieste Tageslichtbad mit Wanne, die Küche und der Wohn-und Essbereich ab. Außerdem bietet der Wohn- und Essbereich den Zugang zur offenen, hellen Küche, mit Kochinsel. Ein Waschmaschinenanschluss ist hier ebenfalls gegeben. Alle Räume sind mit Fenster ausgestattet und bieten somit ein helles Ambiente. Die großzügig, ca. 20 m² große Terrasse, mit Süd-/Westausrichtung und kleinem Gartenanteil, lädt zum Verweilen ein. Hier scheint die Sonne von früh bis spät.
Eine Waschküche und ein Geräteraum, mit allesamt Gartengeräten, befinden sich im Kellergeschoss des Hauses und darf von jedem Hausbewohner genutzt werden.
Die Außenwände der gesamten Wohnung wurden im Jahr 2017 aufwändig gedämmt und verputzt. Auch das Parkett wurde im Zuge dessen abgeschliffen und aufgefrischt.
Ein Tiefgaragenstellplatz sowie ein Kellerraum gehören mit zur Wohnung
Lage:
Die Wohnung befindet sich in zentraler Lage von Sülldorf. Der Weg zur S-Bahn, sowie zur nächsten Bushaltestelle und den nächstliegenden Einkaufsmöglichkeiten beträgt ca. 5 Gehminuten. Auch Ärzte, Kitas und die Grundschule sind im kurzen Fußmarsch erreichbar. Weitere Einkaufsmöglichkeiten sind mit dem Auto, in ca. 5 Min., in Rissen oder Blankenese zu finden. Wer gerne Shoppen geht, kann dieses im nahgelegenen Elbeeinkaufszentrum. Hinter der Wohnanlage liegt der Waldpark Marienhöhe. Dieser erstreckt sich von Sülldorf und Rissen bis hin nach Blankenese und ist ein beliebter Sport- und Freizeitpark für Jung und Alt. Sülldorf ist besonders bei den Reitsportfreunden beliebt, denn der alte Sülldorfer Ortskern bietet Pferdeliebhabern viele Möglichkeiten ihre geliebten Tiere hier unterzubringen.
